Project Detail
Tarleton State University
Total SQFT
2,768.00
Date Completed
06/09/2023
Worked Time
36 weeks
Tarleton State University is a public university and a founding member of The Texas A&M University System, offering a personalized education and significant research growth.
Scope of Work:
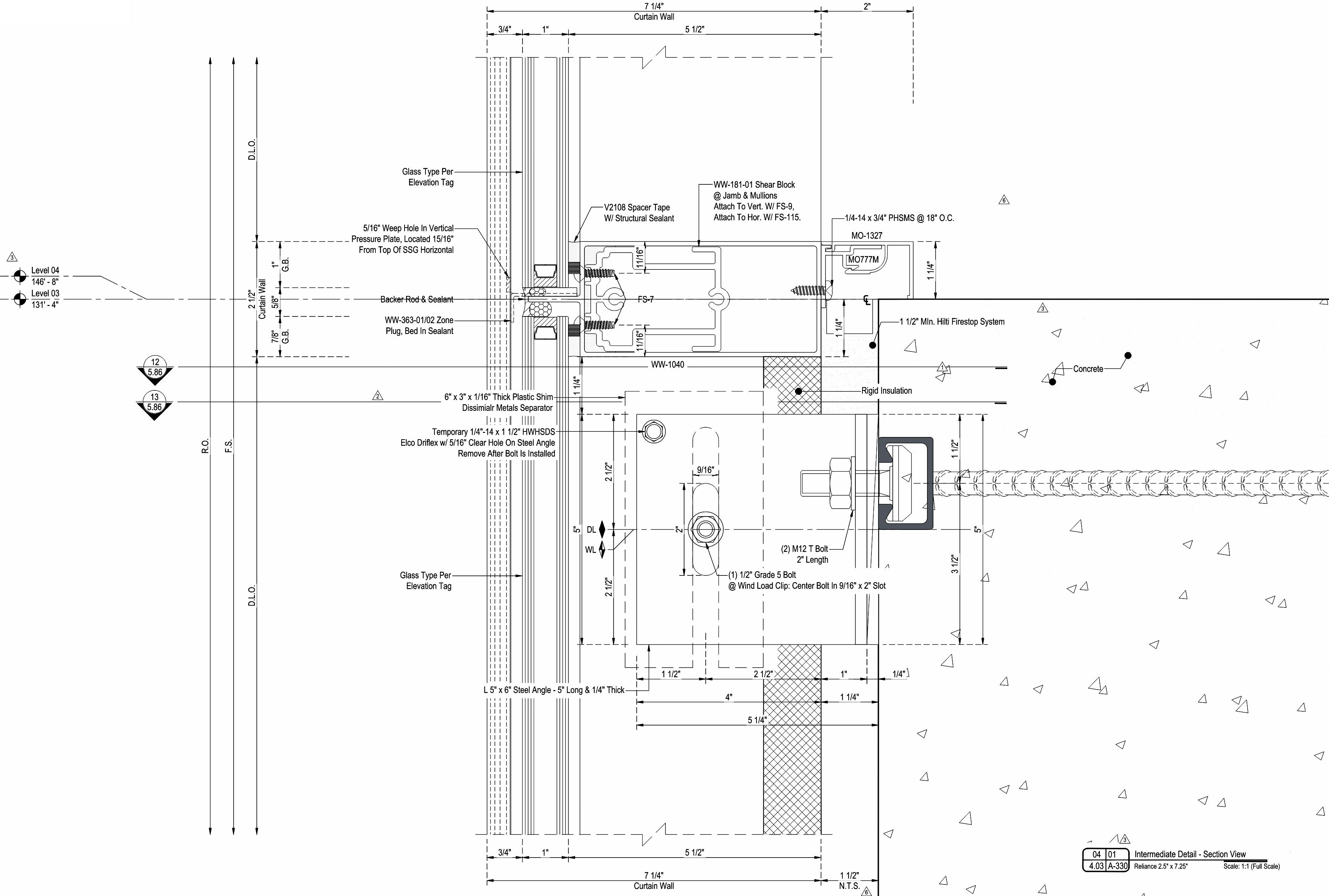
- Production of Exterior Shop Drawings
- Production of Embed Layout
- Engineering / Glazing Calculations
This project was developed in collaboration with Vision Enclosure Walls, Inc.
A sample of work from 823 Drafting Studio for this project:
- Elevation / Shop Drawings

- Details / Shop Drawings

Tarleton State University
10850 Texan Rider Dr, Fort Worth, TX 76036
Side Facade
Start your next project
Feel free to reach out to us for a personalized quote, complete with detailed estimations tailored to meet your project's specific needs and specifications.
Get a Quote
